Description
        Le chalet La Mia est situé à 800m de l'arrêt de bus et des pistes, à 2km de la station et des commerces et restaurants.
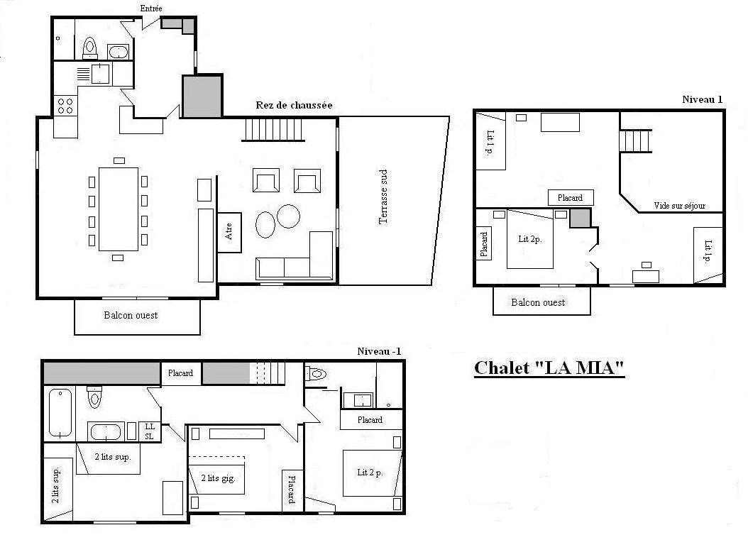
C'est un chalet sur 3 niveaux loué avec le ménage et linge inclus. Au niveau de l'entrée, il se compose d'une cuisine tout équipée ouverte sur le séjour avec un coin repas donnant sur un balcon ouest, un salon avec un canapé d'angle méridienne et 1 cheminée, une salle d'eau et un wc.
Au niveau -1, il comprend une chambre avec 1 ensemble de lits gigognes relevables, 1 chambre avec 2 ensembles de lits superposés, 1 chambre avec 1 lit double 140 disposant d'une salle d'eau et WC attenants. Au même niveau, vous trouverez également une salle de bains avec wc.
A l'étage, la mezzanine comprend 2 lits 1 personne mais aussi une chambre avec 1 lit 2 personnes (140) donnant sur un balcon Ouest. Pas de possibilité de réception TV.
Le linge et le ménage sont inclus.
Les plus de ce chalet à la neige : Dans ce petit hameau de la Gittaz, vous trouverez le calme et le pittoresque d'un village de montagne. La terrasse exposée sud vous offrira une jolie vue sur la forêt de la Gittaz. Vous apprécierez la cheminée pour vous réchauffer au coin du feu les soirs d'hiver.
Le wifi est disponible mais nous dégageons toute responsabilités en cas de dysfonctionnement ou de faible débit.
Animaux acceptés
      
        C'est un chalet sur 3 niveaux loué avec le ménage et linge inclus. Au niveau de l'entrée, il se compose d'une cuisine tout équipée ouverte sur le séjour avec un coin repas donnant sur un balcon ouest, un salon avec un canapé d'angle méridienne et 1 cheminée, une salle d'eau et un wc.
Au niveau -1, il comprend une chambre avec 1 ensemble de lits gigognes relevables, 1 chambre avec 2 ensembles de lits superposés, 1 chambre avec 1 lit double 140 disposant d'une salle d'eau et WC attenants. Au même niveau, vous trouverez également une salle de bains avec wc.
A l'étage, la mezzanine comprend 2 lits 1 personne mais aussi une chambre avec 1 lit 2 personnes (140) donnant sur un balcon Ouest. Pas de possibilité de réception TV.
Le linge et le ménage sont inclus.
Les plus de ce chalet à la neige : Dans ce petit hameau de la Gittaz, vous trouverez le calme et le pittoresque d'un village de montagne. La terrasse exposée sud vous offrira une jolie vue sur la forêt de la Gittaz. Vous apprécierez la cheminée pour vous réchauffer au coin du feu les soirs d'hiver.
Le wifi est disponible mais nous dégageons toute responsabilités en cas de dysfonctionnement ou de faible débit.
Animaux acceptés
Caractéristiques
        - Lave-linge
- Lave-vaisselle
- Plaque de cuisson électrique
- Cheminée
- Four combiné micro-ondes
- Four électrique
- Réfrigérateur-congélateur
      
        - Lave-vaisselle
- Plaque de cuisson électrique
- Cheminée
- Four combiné micro-ondes
- Four électrique
- Réfrigérateur-congélateur
Information
        - Résidence: CHALET LA MIA
- Situation: Gittaz
- Ref: MRB000-016H
- Type: Chalet 5 pièces
- Capacité: 12
- Orientation: Sud
- Étage: 2
- Nombre d'étages: 0
- Superficie: 120 m2
- Chambres à coucher: 4
- Lit simple: 10
- Lits doubles: 2
- Salles de bains: 1
- Salles de douche: 2
- Animaux domestiques acceptés: oui
      
        - Situation: Gittaz
- Ref: MRB000-016H
- Type: Chalet 5 pièces
- Capacité: 12
- Orientation: Sud
- Étage: 2
- Nombre d'étages: 0
- Superficie: 120 m2
- Chambres à coucher: 4
- Lit simple: 10
- Lits doubles: 2
- Salles de bains: 1
- Salles de douche: 2
- Animaux domestiques acceptés: oui
Pièces
        Chambre 1:
- Description: 1 lit 2 personnes
- Lits: 1
Chambre 2:
- Description: 1 ensemble de lits gigognes relevables
- Lits: 2
Chambre 3:
- Description: chambre avec deux ensembles de lits superposés
- Lits: 2
Chambre 4:
- Description: 1 lit 2 personnes
un balcon ouest
- Lits: 1
Mezzanine:
- Description: 2 lits 1 personne
fenêtre est
- Lits: 2
      
        - Description: 1 lit 2 personnes
- Lits: 1
Chambre 2:
- Description: 1 ensemble de lits gigognes relevables
- Lits: 2
Chambre 3:
- Description: chambre avec deux ensembles de lits superposés
- Lits: 2
Chambre 4:
- Description: 1 lit 2 personnes
un balcon ouest
- Lits: 1
Mezzanine:
- Description: 2 lits 1 personne
fenêtre est
- Lits: 2
Adresse
        MERIBEL LES ALLUES
73550
        73550
Coordonnées
        45.412009, 6.561976
      
        Quartier
        Gittaz
      
   
   
     
   
   
   
   
   
   
   
   
   
   
   
   
   
   
   
   
   
   
   
   
   
   
   
   
   
   
   
   
   
   
   
   
   
   
  